Quadrilocale in vendita

L'Aquila, Appartamento Via Colle Sapone
€ 255.000
4 locali 4 locali
145 Mq 145 Mq
2 bagni 2 bagni

Quadrilocale in vendita

L'Aquila, Appartamento Via Colle Sapone

Descrizione annuncio

Torrione-proponiamo in vendita un ampio appartamento, situato al terzo piano di un edificio CON ASCENSORE.

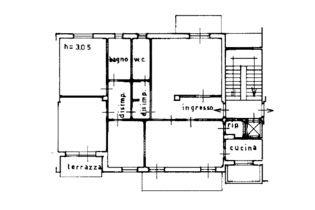
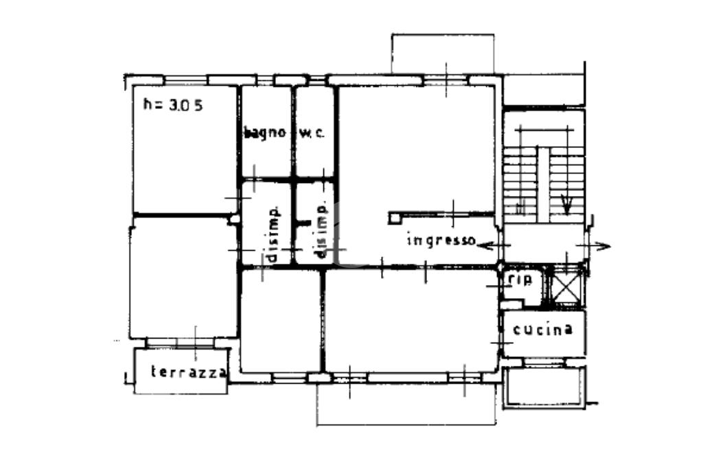
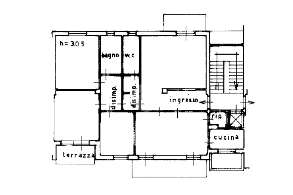
Con una superficie di 145 mq e ottima esposizione l'immobile offre spazi ben distribuiti e funzionali.

L'appartamento si compone di tre camere da letto, due bagni, soggiorno con camino e cucina abitabile.

Completa la proprietà un ampio garage.

l'immobile inoltre è dotato di impianto di riscaldamento autonomo, infissi NUOVI in pvc , porta blindata e parquet.

Questa soluzione abitativa rappresenta un'opportunità interessante per chi cerca una residenza spaziosa e ben collegata

Per altre info e appuntamenti, chiamaci al numero 0862.70.10.91 o vieni a trovarci in agenzia su Corso Vittorio Emanuele II, 15.

Seguici anche sui social Facebook, Tecnorete L'Aquila Centro Est, e Instagram, tecnoretelaquilacentroest, per restare sempre aggiornato su tutte le novità.

Mostra tutto

Nelle vicinanze

Trasporto pubblico Trasporto pubblico
L'Aquila
L'Aquila
2,4 Km
Trasporto pubblico
80 m
Ricariche auto elettriche Ricariche auto elettriche
Eneldrive De Gasperi
300 m
Eneldrive Mezzanotte
360 m
Eneldrive Panella
600 m
Eneldrvie Strinella
750 m
Eneldrive Nizza
1,0 Km
Scuole Scuole
Liceo Scientifico Statale Andrea Bafile
90 m
Liceo Artistico Statale Fulvio Muzi
120 m
Scuola Media Dante Alighieri
190 m
Polo Scolastico Colle Sapone
320 m
Scuola Media Giosuè Carducci
330 m
Farmacia Farmacia
Farmacia Comunale
300 m
Farmacia del Duomo - Eredi Carli
450 m
Farmacia Sericchi
1,1 Km
Farmacia Moderna - Dott.ssa Fanini
1,1 Km
Farmacia
2,2 Km
Ospedali Ospedali
Croce Rossa Italiana - L'Aquila
690 m
Distretto Sanitario dell'Aquila
700 m
Presidio Ospedaliero di Collemaggio
1,6 Km
Supermercati Supermercati
Coop
320 m
L'Angolo dei Buongustai
400 m
Carrefour
430 m
Manetta - cibi e bevande
560 m
Maxi Futura
580 m
Negozi Negozi
Panificazione Prata
520 m
Forno Baiocco
530 m
Casa Sciué
1,0 Km
TO:FINO Gentlemen Shop
1,1 Km
TO:FINO
1,1 Km
Bar Bar
Capitello
470 m
Bar dello Stadio
820 m
Bar
820 m
Chiosco della Fenice
900 m
Bar Castello
1,1 Km
Ristoranti Ristoranti
Sushi Sushi
420 m
Tomahawk - braceria, pizzeria
430 m
Pizzeria "00"
670 m
Ristorante la Rupe
750 m
Vento di pizza
930 m
Mostra tutto

Caratteristiche

Rif.:
61150104
Piano:
3 di 5 con ascensore (Piano alto)
Box:
1
Posti auto:
1
Balconi:
3
Camere da letto:
3
Mostra tutto
Prezzo Prezzo
€ 255.000
Rata mutuo Rata mutuo
€ 1.202 / mese
Spese annue Spese annue
€ 0
Proponi il tuo prezzoProponi il tuo prezzo

Classe Energetica

D
D
D
D
D
D
D
D
D
Anno di costruzione:
1975
Riscaldamento:
Autonomo
Tipo impianto:
A radiatori
Tipo alimentazione:
Metano

Ti interessa visionare l'immobile?

Fissa un appuntamento  Fissa un appuntamento

Richiedi informazioni

Clicca su Leggi per aprire l'informativa
* Questi campi sono obbligatori

Calcola il tuo mutuo

Semplice e senza impegno
Anticipo

( % )
Mutuo

( % )

pochi semplici passi

inserisci i tuoi dati
Questionario completato
Grazie per aver richiesto un appuntamento senza impegno con un nostro Consulente del Credito e Assicurativo.

Hai inserito correttamente tutti i dati necessari e a breve riceverai una e-mail con un link da convalidare per inviare i tuoi dati.
Affiliato
Mediazioni Immobiliari Srls
Corso Vittorio Emanuele II, 15 67100 L'Aquila (AQ)

Il nostro staff


  • Agnese Del Conte
    Coordinatrice

  • Alice Federici
    Collaboratrice

  • Morris Giordano Lauri
    Collaboratore

  • Marco Ianni
    Affiliato

  • Luca Passacantando
    Collaboratore

  • Alessandro Ruzza
    Responsabile
Corso Vittorio Emanuele II, 15 67100 L'Aquila (AQ)
Zona: L'aquila Centro-Est
Mostra su mappa
Orari: dal LUNEDI al VENERDì : dalle 09:30 alle 13:00 e dalle 15:00 alle 19:30 SABATO : dalle 9:30 alle 13:00
Affiliato
Mediazioni Immobiliari Srls
Corso Vittorio Emanuele II, 15 67100 L'Aquila (AQ)

2026 Tecnocasa Franchising S.p.A. - P. IVA 08365160152 - Via Monte Bianco 60/A 20089 Rozzano (MI). Ogni agenzia ha un proprio titolare ed è autonoma. Privacy policy | Policy utilizzo | Cookie policy